Cerca al web
Informar-te
Ajuts i subvencions
Calendari de festes locals
Coneix Tarragona
Deixalleries
Hemeroteca i arxiu
IBI i altres impostos
Normativa i ordenances
POUM
Tarragona Ràdio
Trobar-nos
OMAC i oficines d'atenciò
Telèfons
Plànol
Epp!
Brigada d'Intervenció ràpida
Tramitar
Catàleg de tràmits
Empadronament
Sol·licitud genèrica
Llicència d'obres
Oficina virtual tributària
Seguiment de tràmits
Accès a la informació pública
Inscripcions cursos i activitats
Viure
Agenda
Benestar animal
Castells
Centres Cívics
Santa Tecla
Monuments
Platges i espais verds
Teatres
Treballar
Borsa de treball
Palau de Congressos
Invest in Tarragona
Tarragona impulsa
Tarragona Film Office
Moure't
Aparcaments
EMT (autobusos municipals)
PMET (esports)
ZBE (Zona de Baixes Emissions)
Accès
Cerca al web
Què necessites?
Translate
Català
Español
English
Français
Russian
Xarxa de Centres Cívics
Fan per tu
La Xarxa
Activitats i cursos
Serveis
Projectes
La Xarxa de Centres Cívics de Tarragona
Reglament
Bústia de suggeriments
Pla estratègic 2023
Activitats i cursos
Digues-hi la teva!
Històric de publicacions
Serveis de la Xarxa de Centres Cívics
Serveis que acollim
ImPonent
Rutes històriques
Saquets solidaris
CaminART
El barri et cuida
Boca-orella
Mercat d'intercanvi
Esteu aquí:
Inici
›
Centres Cívics
›
fitxers
›
Plànols Centres Cívics
›
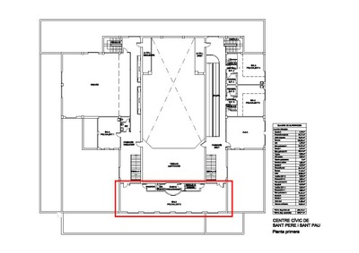
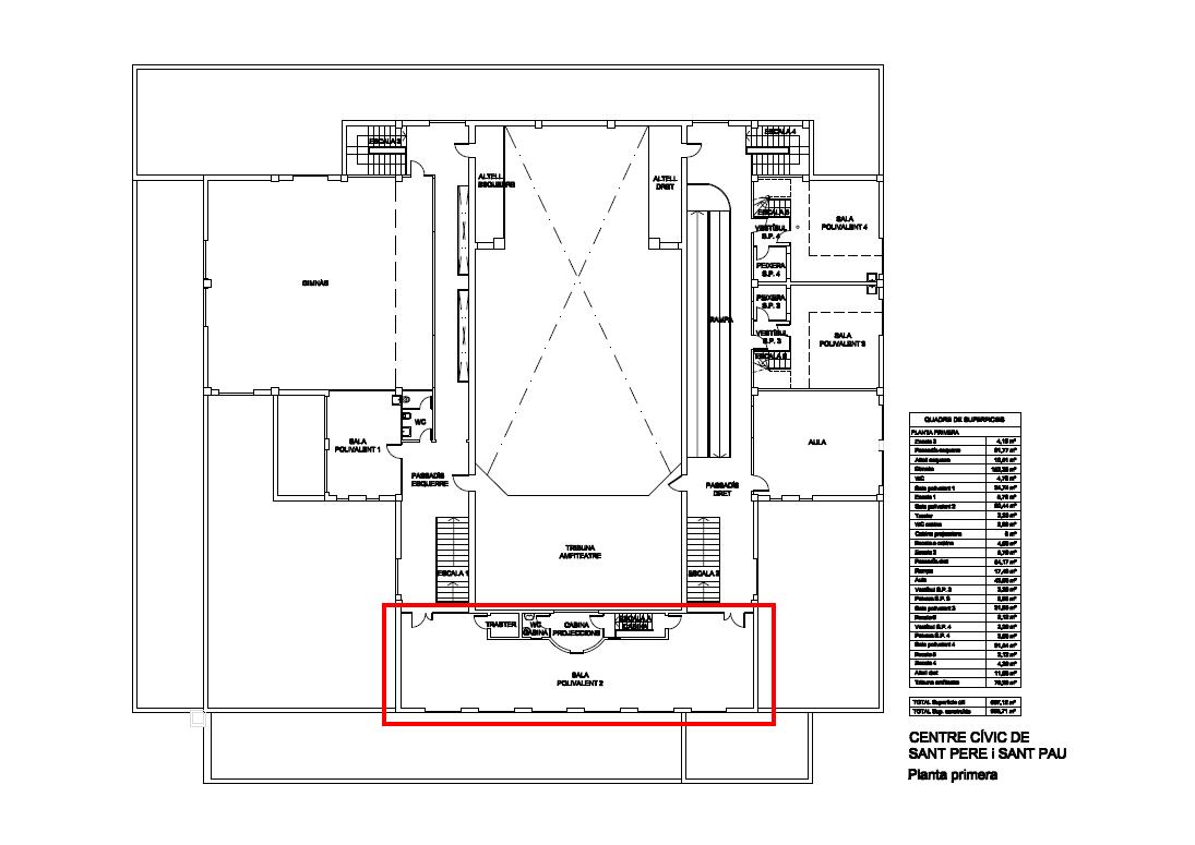
SP SP planta primera 2
SP SP planta primera 2
SP SP planta primera 2
Info
Feu clic per a visualitzar la imatge a mida completa…
—
Mida
:
77.8 kB