• Accés principal: Rambla Nova, 11.
• Accés a l’escenari per a descàrrega d’escenografies: carrer de Santa Clara, s/n.
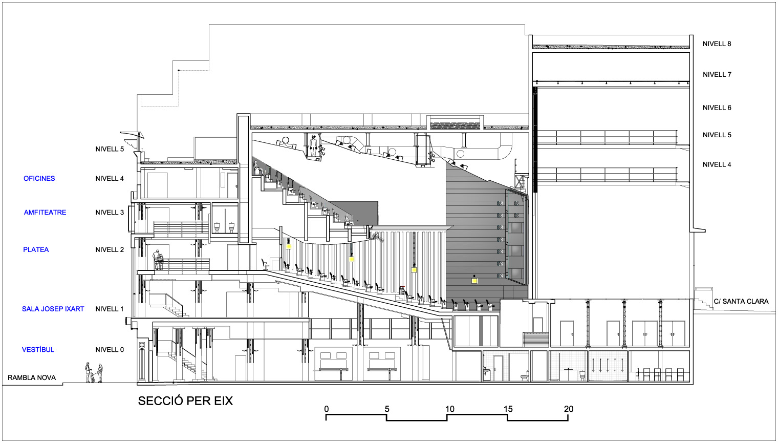
• Aforament: 695 butaques, de les quals:
- 215 es troben a la platea baixa (incloses 21 butaques de la fila 0, sobre l’orquestra)
- 265 a la platea alta (nivell 2)
- 215 a l’amfiteatre (nivell 3)
• Accessibilitat: tres escales dedicades al públic, dues d’elles fins a l’amfiteatre.
• Ascensor a totes les plantes.
• Accessibilitat per a persones amb mobilitat reduïda: a la platea alta (fila 19, pujant amb ascensor fins al nivell 2).
• Escenari: 220 m2 (17,65 m d’ample i 12,6 m de fons).
• Boca: 12,4 m d’ample i 6,3 m d’altura.
• Pinta (estructura sobre l’escenari) a 18 m d’altura, amb 21 barres motoritzades de velocitat variable
i control programable.
• Càmera negra, teló de boca i ciclorama.
• Projector de 20.000 lm i pantalla de cinema.
• 260 canals de regulació de la il·luminació.
• Cabina de control al fons de la platea per als sistemes d’il·luminació, àudio i vídeo.
• Fossat per a l’orquestra, per a 30 músics.
• Camerinos, per a 30 intèrprets.
