Esteu aquí: Inici Esports Notícies Notícies 2022 El Ple aprova la inversió per al nou gimnàs de Sant Pere i Sant Pau

El Ple aprova la inversió per al nou gimnàs de Sant Pere i Sant Pau

El Ple aprova la inversió per al nou gimnàs de Sant Pere i Sant Pau

L’Ajuntament destinarà 1.507.000 € a la construcció d’un equipament esportiu que es preveu que estigui enllestit el 2023
28/01/2022

Aquest divendres 28 de gener, el ple de l’Ajuntament de Tarragona ha aprovat el modificatiu de crèdit pel qual el consistori podrà tirar endavant el projecte de nou gimnàs de Sant Pere i Sant Pau. La inversió destinada al nou equipament és d’1.507.000 € i la previsió és que les obres comencin el 2022 i estiguin acabades el 2023.  

Sobre l’aprovació d’aquesta inversió, la consellera d’Esports, María José López, ha volgut destacar que “els veïns i veïnes de Sant Pere i Sant Pau podran gaudir d’un equipament llargament reclamat” però que fins ara, “malgrat estar previst des de 2011, no havia comptat mai amb la dotació pressupostària corresponent”.  

Per la seva banda, el conseller de Serveis Centrals, Jordi Fortuny, ha celebrat que finalment es pugui dur a terme ja que es tracta d’un “deute històric” amb el barri, que compta actualment amb “ la instal·lació esportiva més precària que hi ha a la ciutat i que dona servei a  20 mil habitants”. “Amb aquest projecte quadrupliquem els vestidors de piscina, creem la zona d’aigües, dotem de gimnàs i facilitem l’accessibilitat al pavelló de Sant Pere i Sant Pau”, sentencia l’edil.  

Actualment, està en fase de licitació l’actualització de la redacció del projecte per actualitzar-lo i adaptar-lo a la normativa vigent —el projecte existent és de 2011. Les propostes es poden presentar fins al dia 4 i a partir d’aquí, un cop resolt el procés, es podran licitar les obres. 

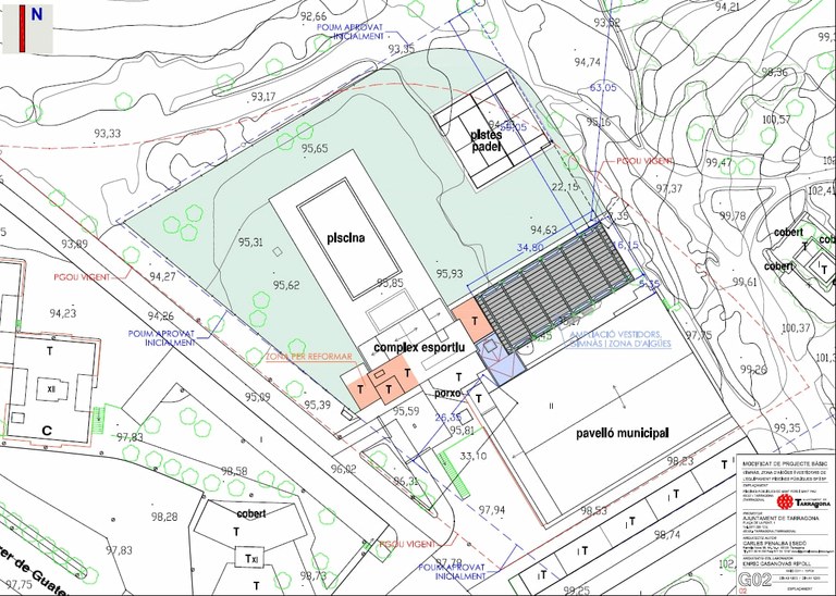
El nou gimnàs a Sant Pere i Sant Pau serà un edifici nou entre la piscina i el pavelló, que ocuparà en total una superfície de 1.649 metres quadrats. Tindrà vestuaris, sales d’activitats i musculació i dos espais per a rehabilitació i comptarà amb un ascensor per facilitar-ne l’ús a les persones amb mobilitat reduïda.  

Nous preus públics també aprovats  

En el mateix plenari s’han aprovat també diferents modificacions referents als preus públics del Patronat Municipal d’Esports de Tarragona (PMET). Entre els punts aprovats, hi ha el de no realitzar cap càrrec de quota a les persones amb abonament PMET o FITNESS  que hagin sol·licitat bloquejar l’abonament com a conseqüència de l’entrada en vigor de la resolució que establia l’obligatorietat d’acreditar el certificat acreditatiu covid corresponent; i no considerar baixa, als efectes de pagament de la quota d’inscripció corresponent, les persones a les quals s’hagi bloquejat temporalment l’abonament amb motiu de la situació de la covid19 i l’obligatorietat d’acreditar el certificat corresponent.  

Afavorir la pràctica esportiva de persones en risc d’exclusió social   

D’altra banda, el mateix punt aprovat al plenari contempla una col·laboració amb l’Institut Municipal de Serveis Socials de Tarragona. Aquesta col·laboració s’estableix per raons socials i d’interès públic i està orientada a afavorir la pràctica esportiva de persones en risc d’exclusió social. El PMET adapta el tipus de serveis que s’ofereix a les necessitats de cada persona, aplicant el preu públic corresponent, el qual és abonat total o parcialment per part de l’IMSST. Tal com ha explicat la consellera de Serveis Socials, Inés Solé, “d’aquesta manera, afavorim l’assistència de qualsevol ciutadà i ciutadana amb risc d’exclusió social a poder gaudir també de les instal·lacions així com de la seva graella d’activitats contribuint així a la inclusió i a fer de Tarragona una ciutat que promou la justícia social en tots els àmbits, com aquesta cas, les activitats esportives”. 

En el cas concret de les Estades Esportives d’estiu, al voltant de 70 infants han pogut beneficiar-se d’aquesta col·laboració i participar d’aquesta activitat durant el 2021. 

Consulteu els detalls del projecte d'actualització a normativa del projecte executiu del gimnàs, zona d'aigües i vestuaris de l'equipament de piscines públiques de Sant Pere i Sant Pau al Perfil de contractant municipal.

Segells de reconeixement d'administració oberta